125 Wyatt WAYJarrell, TX 76537
Due to the health concerns created by Coronavirus we are offering personal 1-1 online video walkthough tours where possible.




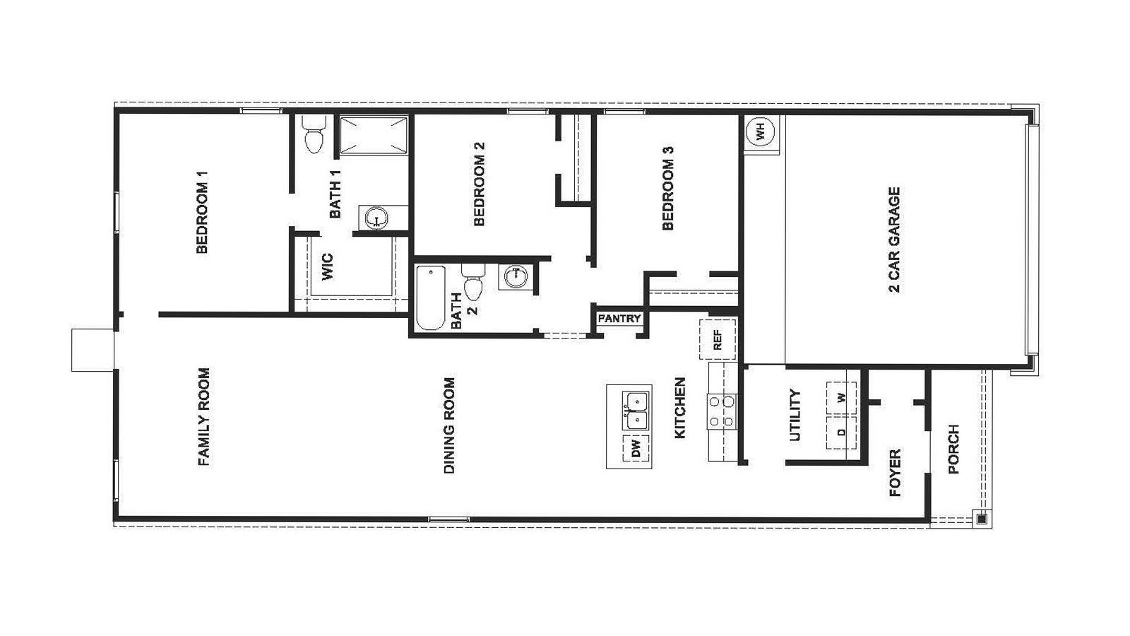
Come and experience the charm of the Caprock floorplan at The Villages at Schwertner Ranch, a stunning single-story home with a 2-car garage in Jarrell, Texas, that’s everything you’ve been looking for. This thoughtfully designed 3-bedroom, 2-bathroom home offers approximately 1,434 square feet of well-used space. The open-concept layout connects the kitchen, dining, and living areas seamlessly, creating a warm and welcoming space perfect for both everyday living and entertaining guests. Stepping into the entrance of the house and into the foyer, you’ll find the laundry room conveniently located just off the kitchen. The kitchen itself is a chef’s delight, featuring a spacious island, stainless steel appliances, and ample counter space. Two secondary bedrooms and a secondary bathroom are situated just off the kitchen. Situated off the living room at the back of the home, the primary bedroom provides a peaceful retreat, complete with a primary bathroom that has a walk-in shower, and a spacious walk-in closet. Every D.R. Horton home is equipped with our smart home technology, adding convenience and peace of mind to your daily life. Contact us today to make the Caprock your new home at The Villages at Schwertner Ranch!
| 17 hours ago | Listing first seen on site | |
| 18 hours ago | Listing updated with changes from the MLS® |
All information provided is deemed reliable but is not guaranteed and should be independently verified. Listings courtesy of ACTRIS as distributed by MLS GRID. The Austin Board of REALTORS®, ACTRIS and their affiliates provide the MLS and all content therein "AS IS" and without any warranty, express or implied.
Last checked - 2025-11-25 09:01 AM CST
REQUIRED DMCA NOTICE Member Participant’s IDX site must comply with The Digital Millennium Copyright Act of 1998 by including appropriate notification instructions to users. A Vendor or Member Participant that receives a DMCA notice of infringement must immediately (no later than 24 hours after receipt) notify MLS GRID at [email protected]. A Member Participant’s IDX site must include the conspicuous display of the following two paragraphs: The Digital Millennium Copyright Act of 1998, 17 U.S.C. § 512 (the “DMCA”) provides recourse for copyright owners who believe that material appearing on the Internet infringes their rights under U.S. copyright law. If you believe in good faith that any content or material made available in connection with our website or services infringes your copyright, you (or your agent) may send us a notice requesting that the content or material be removed, or access to it blocked. Notices must be sent in writing by email to [email protected]. “The DMCA requires that your notice of alleged copyright infringement include the following information: (1) description of the copyrighted work that is the subject of claimed infringement; (2) description of the alleged infringing content and information sufficient to permit us to locate the content; (3) contact information for you, including your address, telephone number and email address; (4) a statement by you that you have a good faith belief that the content in the manner complained of is not authorized by the copyright owner, or its agent, or by the operation of any law; (5) a statement by you, signed under penalty of perjury, that the information in the notification is accurate and that you have the authority to enforce the copyrights that are claimed to be infringed; and (6) a physical or electronic signature of the copyright owner or a person authorized to act on the copyright owner’s behalf. Failure to include all of the above information may result in the delay of the processing of your complaint.
Did you know? You can invite friends and family to your search. They can join your search, rate and discuss listings with you.